
全國服務熱線 語言選擇 :EN
1 技術介紹
針對某些特殊行業的鋼結構工業廠房(如煉鋁廠)鋼屋架的加固,因安全生產和環境要求,不允許在廠房內進行焊接施工,不允許對鋼構件進行打孔施工,在這樣的條件下,研究了鋼構件粘接與裝配式加固技術,可實現鋼構件的不焊接不打孔加固施工,該技術也能應用在電力塔架基礎柱腳鋼構件的加固工程上。
2 工程應用
2.1 青銅峽鋁業股份有限公司寧東鋁業分公司廠房鋼結構屋架加固工程
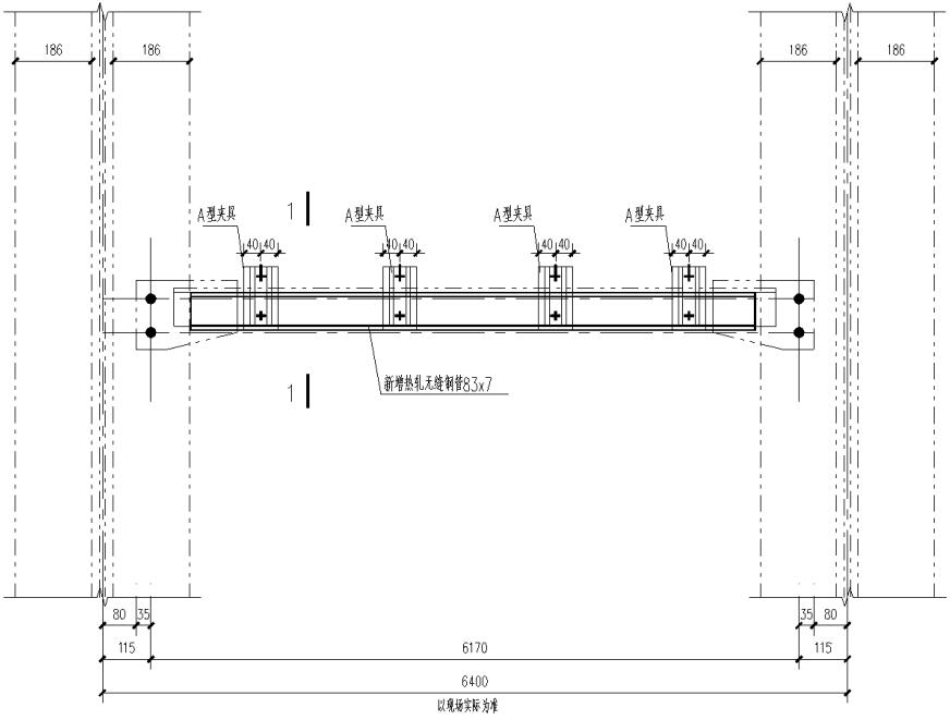
寧東鋁業分公司350kA電解車間包括兩幢并排的廠房,廠房為單層單跨鋼筋混凝土排架結構,柱距為6.4m,每幢廠房跨度30m,長度為1004.8m,每個16個柱距設置伸縮縫一道(伸縮縫區段長為100m,以下簡稱“結構單元”),每幢廠房分為10個結構單元,共計20個結構單元。2014年因屋架垂直度偏差較大,經有限元計算分析,發現鋼結構屋架的部分水平支撐、豎向支撐、水平系桿存在穩定性或承載力不足的情況,需加固處理。工程現場不允許對原鋼構件打孔和焊接,故提出了鋼構件粘接與裝配式加固技術,并成功應用在該工程。
(a)寧東鋁業分公司電解車間實景
(b)某桿件加固方案圖
(c)加固桿件剖面圖
圖1 寧東鋁業分公司廠房鋼結構屋架加固工程
2.2 河南漯淮線鐵塔基礎加固工程
圖2 河南漯淮線鐵塔基礎加固項目